Flameproof Junction Box Ex d – Zone 1 & Zone 2 Hazardous Area Junction Boxes

Flameproof Junction Box Ex d – Stainless Steel Zone 1 & Zone 2 Hazardous Area
Flameproof Junction Box Ex d
Abtech SSD flameproof junction boxes (Ex d) are ATEX certified and suitable for Zone 1 and Zone 2 hazardous areas. The Ex d flameproof junction box is designed to house electrical and electronic apparatus within Zone 1 and Zone 21 hazardous areas.
Abtech SSD stainless steel junction boxes have an Ex d flameproof design allowing potentially sparking equipment to be safely installed in areas where explosive gases or dust may be present. The use of 316L marine grade stainless steel ensures maximum environmental protection for harsh onshore and offshore operating conditions.
Flameproof Ex d Junction Boxes
Zone 1 & Zone 2 Hazardous Area
Abtech SSD Features

Junction Boxes & Enclosures
- Ambient temperature range of – 20°C to + 40°C
- Zone 1 & Zone 2 Hazardous Area Certified By ATEX
- Flameproof Enclosure
- IP66 to EN60529 rating
- Up to 24kV ac or 1500V dc voltage rating
Zone 1 Hazardous Area
A hazardous area location according to ATEX in which an explosive atmosphere consisting of a mixture with air of flammable substances in the form of gas, vapour or mist is likely to occur in normal operation occasionally.
Zone 2 Hazardous Area
A hazardous area location according to ATEX in which an explosive atmosphere consisting of a mixture with air of flammable substances in the form of gas, vapour or mist is not likely to occur in normal operation but, if it does occur, persists for a short period only.
ATEX Explained
The ATEX Directive consists of two EU directives describing the type of equipment and hazardous area location within a potentially explosive atmosphere. ATEX originates its name from the French title of the 94/9/EC directive: Appareils destinés à être utilisés en ATmosphères EXplosibles.
Cable entries can be drilled in the enclosure or junction box door, sides or via the cable gland plates – cable entries can also be drilled through the rear face of the stainless steel enclosure (EEx’e’ hazardous area versions).
The hazardous area enclosures include a hinged, lift-off door secured to the junction box using 4 captive stainless steel screws which also maintain the correct compression on the gasket.
Abtech SSD Enclosures – Product Specification
| Abtech Product Type | Flameproof Ex d Enclosure Range |
| Ingress Protection | IP66 to EN60529 |
| Material | 316 Stainless Steel enclosure, cover & hinges complete with 316 Stainless Steel fasteners |
| Mounting Plate | 316 Stainless Steel |
| Components | Switches, Breakers, RCD units, Indicator lamps, motor controllers, etc |
| Voltage Rating | Up to 24kV ac or 1500V dc |
| Cable Entry | Variable Metric or NPT entry combinations on any of the 4 sides |
| Mounting | Via rear mounting lugs |
Abtech SSD
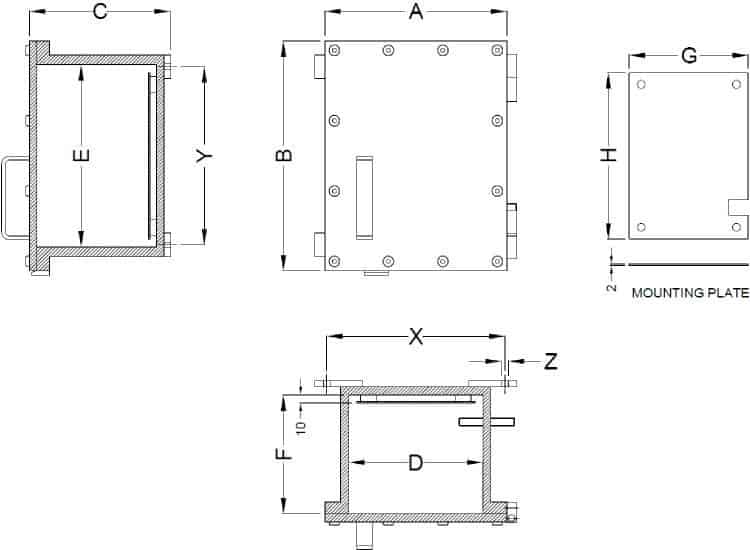
| Abtech SSD Model | External Dimensions (mm) |
Internal Dimensions (mm) |
Fixing Dimensions (mm) | Mounting Plate (mm) | Weight (kg) |
|||||||
| A | B | C | D | E | F | X | V | Z | G | H | ||
| SSD113 | 150 | 180 | 106 | 100 | 130 | 80 | 140 | 130 | 7 | 90 | 120 | 11 |
| SSD234 | 230 | 290 | 178 | 170 | 230 | 150 | 225 | 225 | 9 | 150 | 210 | 23 |
| SSD434-A | 230 | 400 | 180 | 170 | 340 | 150 | 225 | 335 | 9 | 150 | 320 | 30 |
| SSD434-B | 280 | 400 | 180 | 220 | 340 | 150 | 275 | 335 | 9 | 200 | 320 | 34 |
| SSD435 | 270 | 460 | 220 | 210 | 400 | 190 | 265 | 395 | 9 | 190 | 380 | 42 |
| SSD445-A | 310 | 410 | 220 | 250 | 350 | 190 | 315 | 345 | 9 | 230 | 330 | 42 |
| SSD445 | 370 | 450 | 224 | 310 | 390 | 190 | 365 | 385 | 9 | 290 | 370 | 61 |
| SSD546 | 340 | 600 | 244 | 270 | 530 | 210 | 325 | 525 | 11 | 250 | 510 | 70 |
| SSD556-A | 440 | 500 | 250 | 370 | 430 | 210 | 425 | 425 | 11 | 350 | 410 | 83 |
| SSD556-B | 470 | 560 | 250 | 400 | 490 | 210 | 455 | 485 | 11 | 380 | 470 | 88 |
| SSD646 | 330 | 710 | 290 | 250 | 630 | 250 | 305 | 625 | 11 | 230 | 610 | 104 |
| SSD656 | 420 | 770 | 297 | 340 | 690 | 250 | 395 | 685 | 13 | 320 | 670 | 146 |
| SSD667 | 530 | 780 | 305 | 450 | 700 | 250 | 510 | 675 | 15 | 430 | 680 | 207 |
| SSD768 | 670 | 1120 | 450 | 570 | 1020 | 390 | 650/550 | 1000/1100 | 15 | 550 | 1000 | 436 |

Abtech SSD Stainless Steel – Dimensions
Enclosure Options
| MS | Mild Steel |
| H2 | Group IIB+ H2 version |
| RALxxxx | Paint Finish (Any RAL colour)Note: Maximum paint thickness limited to 2mm for IIB and 0.2mm for IIB+H2 areas |
| INT | Internal Flange |
| W | Window options available for window fitted to cover or sides |
| BD | Breather Drain (Stainless Steel M20 or 1/2″ NPT) |

Abtech SSD Stainless Steel Electrical Enclosures & Junction Boxes – Zone 1 & Zone 2
Hazardous Area Certification

Abtech SSD Stainless Steel
Abtech SSD stainless steel enclosures are certified according to leading hazardous area classifications including:
- Area Classification – Group IIB Category 2 GD (Zone 1/21 and 2/22), Option: Group IIB+ H2 Category 2 GD (Zone 1/21 and 2/22)
- Type of Protection – Ex db (Flameproof), Ex tb (Dust), Ex db [ia/ib] (Intrinsically Safe)*
- Apparatus Coding – Ex db IIB or IIB+H2 T* Gb, Ex tb* IIIC T* °C Db
Ex db [ia Ga] IIB or IIB+H2 T6 Gb, Ex tb [ia Da] IIIC T85 °C Db
Ex db [ib Gb] IIB or IIB+H2 T6 Gb, Ex tb [ib Db] IIIC T85 °C Db - Certificate Number – INERIS 13ATEX0019X / IECEx INE14.0061X
T&D, The Explosive Atmosphere Experts, provide a single-source capability for the most extensive range of Electrical, Mechanical, Process & Instrumentation Equipment suitable for hazardous area locations.
- Zone 1 Hazardous Area Lighting
- Zone 2 Hazardous Area Lighting
- Enclosures, Motor Starters & Isolators

Hazardous Area Electrical Enclosures & Junction Boxes

With international hazardous area classifications, including ATEX, Abtech SSD stainless steel junction boxes and enclosures are suitable for onshore and offshore installation in both Zone 1 & Zone 2 hazardous area locations. T&D provide pre-assembled terminal enclosures for use as hazardous area lighting, power, heat tracing and instrument junction boxes with increased safety, intrinsically safe and flameproof explosion protection methods – we can custom supply high voltage enclosures for 3.3kV, 6.6kV, 11kV and 33kV networks.